山梨県内の不動産情報 南アルプス市・甲斐市・中央市・甲府市・北杜市・韮崎市・笛吹市・甲州市・山梨市・富士川町・昭和町・市川三郷町・早川町・南部町

建物売買物件詳細рO55(284)6156   

  

 販売価格                   890万円
 所在地                     北杜市高根町村山西割
 交通                      バス   JA熱見支所前   徒歩6分
 土地面積                   523.12u(158.24坪)
 建物面積                   134.31u(40.62坪)
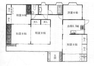
 間取                      5DK
 構造                      木造瓦葺平家建
 建築年月                   昭和63年12月
 都市計画・用途地域             都市計画区域外
 建蔽率・容積率                50%・100%
 学区                      高根西小学校・高根中学校
 道路状況                   南東5m公道
 設備
   電気        東京電力
   水道        公営
   ガス        個別プロパン
   衛生        本下水道
 現況                      空家
 引渡                      即時
 取引態様                   一般媒介
 備考                      告知事項有
                          ご成約の際には法定(売買価格×3%+6万円)の仲介手数料とそれにかかる消費税を別途申し受けます。
                          ※掲載物件デ−タ−が現況と異なる場合は現況を優先とします。
不動産に関するご相談  成和ハウジング興業  土地・建物の売買賃貸
TEL 055−284−6156